top of page
Property Description
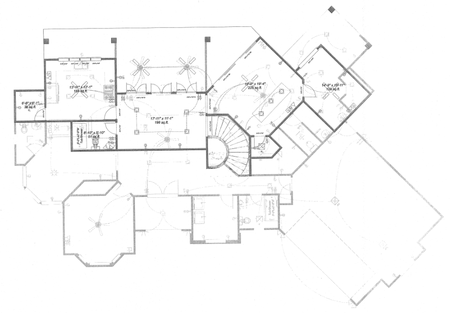
This is a special project. Our old home tragically taken by the Camp Fire being brought back to life! A .32 lot in an area of upscale homes. At almost 3000sqft this is a one off custom home designed with comfort in mind at a drastically discounted price.
Property Details
Property Type
Size
2791 sqft
Property Location
263 Redbud Dr, Paradise, CA 95969, USA
bottom of page



